In April, we received an inquiry from our agent in Dominican Republic

The customer has a metal frame shaft with some metal mesh at the bottom. We can use the existing metal frame shaft to install a hydraulic elevator. After installation, the customer can seal the shaft with panels or glass to prevent rain and snow from damaging the electrical components inside the elevator.

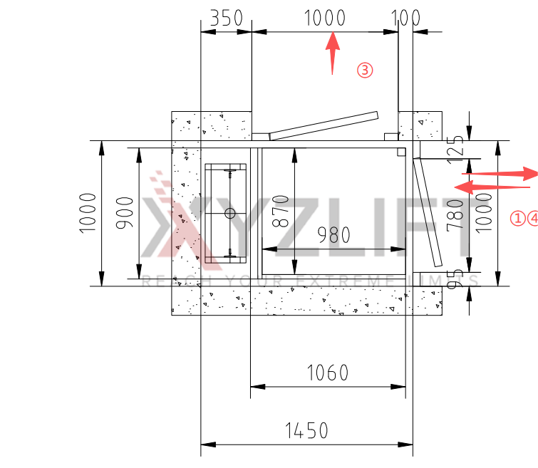
Based on the client’s site dimensions of 1450*1000mm for the shaft, a hydraulic elevator is the optimal choice. The building has four floors. The first and fourth floors have the same entrance and exit direction, the third floor is on the side, and the second floor will not stop. To meet the client’s requirements, we have equipped the cage-like shaft with three landing doors on the 1st, 3rd, and 4th floors, with a 90-degree entrance and exit direction. The shaft dimensions provided by the client are as follows.

1.Shaft internal dimensions: 1450*1000 mm
2.Load requirement: 400 kg
3.Lifting height: 10280 mm
4.Top floor height: 2400 mm
5.Door opening method: 90-degree opening

Based on the customer’s site dimensions and technical analysis drawings, we will provide a design plan.

The guide rail is on the left side, which is also the back panel facing the building. Light curtain doors are installed on the right and rear sides. The first and fourth floors use the right side for entry and exit, while the third floor uses the rear. The landing doors are manual, which is suitable for shafts with limited dimensions, increasing the opening width without taking up internal shaft space.

Regarding the issue of foundation pits, if the client cannot construct one on-site, we can provide a fixed ramp.

Send A Messange

We will promptly respond to your inquiry within 8 hours to provide the necessary information and support.

Author:April Zhao

Title: Sales Manager of XYZLIFT

Profile:At the helm of hydraulic lift innovation and sales at XYZLIFT since the distinguished year of 2011.

Ask For A Quick Quote

We will contact you within 1 working day, please pay attention to the email info@xyzlift.com

Or contact us by whatsapp +86-18366130656