Project Background: A New Need from a Valued Client

In November 2025, we received another inquiry from our long-standing Australian client, Cass. She runs a successful elevator company and has previously collaborated with XYZLIFT on multiple projects. This time, she was seeking a solution for a boutique restaurant project: a system to transport dishes and food between the second-floor kitchen and the first-floor bar area-dumbwaiter.

Client Requirements:

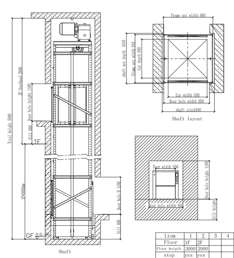
  • Type: Window-type dumbwaiter

  • Load Capacity: 100kg

  • Car size: 650mmW×650mmD×800mmH

  • Lifting Height: 3000mm

  • Top Floor Height: 2990mm

  • Entrance & exit direction: 1F from front side, 2F from rear side

As a long-term partner, Cass contacted us immediately because she trusted XYZLIFT to understand her professional needs and provide a reliable customized solution.

Sales Process: Efficient Collaboration Built on Mutual Understanding

Rapid Response, Precise Understanding:

Upon receiving the inquiry from our returning client, our team acted quickly. We understood clearly that Cass, as a local professional, values most: solution feasibility, delivery lead times, and consistent product quality.

Through brief email and WhatsApp communication, we quickly identified the three core project requirements: window-type installation, full stainless steel construction to meet kitchen hygiene standards, and a compact structure due to limited installation space.

Leveraging Experience, Providing Professional Solutions:

Based on the client’s needs and our past experience, we recommended the strong-drive dumbwaiter. This design has no counterweight, resulting in a compact structure ideal for installation in confined spaces.

We provided detailed quotations and drawings. Specifically for the kitchen environment, we included food-grade stainless steel cabins and landing doors as standard, and optimized the control system for higher leveling accuracy to prevent spillage.

Highlighting Advantages: 

The entire technical coordination process was exceptionally smooth because we were already familiar with each other’s communication styles and standards. This demonstrates the long-term trust and professional synergy we build with global partners.

Strengthening Trust, Ensuring Worry-Free Delivery:

For a valued client like Cass, the quotation and contracting process was highly efficient. Our focus shifted to quality control and logistics details.

We provided production progress photos and conducted pre-shipment test videos for confirmation. For international transport, we used fumigation-free wooden cases suitable for sea freight and provided detailed English installation manuals to ensure Cass’s installation team could work smoothly on-site.

XYZLIFT's Core Strengths Demonstrated:

This project once again confirms the foundation upon which XYZLIFT wins and maintains long-term relationships with global professional clients:

For returning clients, every delivered product must maintain the same high quality standards. Our manufacturing processes and quality control systems allow partners like Cass to confidently recommend XYZLIFT to her clients.

Send A Messange

We will promptly respond to your inquiry within 8 hours to provide the necessary information and support.

Author:April Zhao

Title: Sales Manager of XYZLIFT

Profile:At the helm of hydraulic lift innovation and sales at XYZLIFT since the distinguished year of 2011.

Ask For A Quick Quote

We will contact you within 1 working day, please pay attention to the email info@xyzlift.com

Or contact us by whatsapp +86-18366130656